
小池ビル六本木・麻布・白金 港区の賃貸情報
物件番号:36777
住所
港区南麻布1-5-10小池ビルの募集中物件リスト
| 図面 | 階数 | 面積 | 賃料(共益費込) (坪単価) |
保証金/敷金 | 礼金 | 入居可能日 |
|---|---|---|---|---|---|---|
| 1階 |
G 20.07坪 (66.35m2) |
361,260 (18,000) |
6ヶ月 | 無 | 相談 | |
| 1階 |
G 46.23坪 (152.83m2) |
832,140 (18,000) |
6ヶ月 | 無 | 2026/7 中旬 |
|
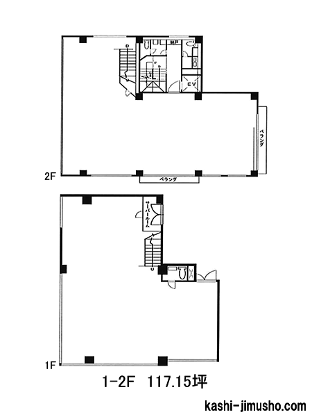
| 1-2階 |
G 117.15坪 (387.27m2) |
2,108,700 (18,000) |
6ヶ月 | 無 | 2026/7 中旬 |
|
| 2階 |
G 70.92坪 (234.45m2) |
1,276,560 (18,000) |
6ヶ月 | 無 | 2026/7 中旬 |
全4件を確認する
表示フロアを閉じる
- ※取引態様:媒介
- ※フロア図面と現況が異なる場合は現況を優先いたします。
- ※貸室内部の写真・貸室からの景色に関しては、現在の募集フロアと異なる場合がございます。
- ※保証金/敷金以外の費用については別途消費税が必要になります。
- ※各物件により、別途費用が必要な場合には、物件紹介時又は重要事項説明においてご説明いたします。
- ※面積の箇所に表示している N はネット契約(契約面積はオフィス専用部分のみ)、G はグロス契約(契約面積は共用部分を加えた面積)を表しています。
小池ビルの設備概要※-は確認中の表記になります。
| 竣工 | 1982年 | 構造・階建て | RC造 地上7階 地下- |
|---|---|---|---|
| 耐震 | 基準階面積 | 70.92坪 | |
| エレベーター | 1基 | 駐車場 | 無 |
| ビル使用時間 | 24時間使用可 | エントランス | |
| セキュリティ | 機械 | 光ファイバー | 有 |
| 契約種別 | 定期借家契約 | 建替え予定 | - |
| 保証契約 | 有 |
南麻布エリア!落ち着いた環境のオフィスビル!

武井 創
小池ビルは、東京都港区南麻布1-5-10に位置する地上7階建てのオフィスビルです。1982年7月に竣工し、RC造で建てられています。交通アクセスは良好で、東京メトロ南北線の麻布十番駅から徒歩5分、都営大江戸線の麻布十番駅から徒歩8分で利用可能です。麻布十番駅は六本木や溜池山王、目黒方面などへのアクセスに優れており、都内主要エリアへの移動もスムーズです。通勤や営業活動、来客対応にも対応しやすい立地であり、ビジネスの拠点としての利便性を備えています。建物にはエレベーターが1基設置されており、各フロアへの移動もスムーズです。通信環境は光回線に対応しており、高速インターネット環境の導入が可能です。オンライン会議やクラウドサービスなど、現代のビジネスに必要な通信インフラにも対応しやすい設備です。セキュリティは機械警備が導入されており、防犯体制が整えられています。また24時間使用制限がないため、業務時間に縛られず、夜間や早朝の作業にも対応可能です。柔軟な働き方を実現できる環境が整っています。室内の空調は個別空調方式を採用しており、区画ごとに温度調整が可能です。利用人数や業務内容、時間帯に応じて柔軟に管理できるため、快適な執務環境を維持しやすい仕様です。床はOAフロア仕様となっており、電源や通信配線を床下に整理して設置することができます。これにより執務空間をすっきりと保ちながら、IT機器を多く使用する業務にも対応しやすい環境です。レイアウト変更にも柔軟に対応でき、企業の成長や組織変更にも適応しやすい仕様です。このように小池ビルは、さまざまな企業にとって魅力的な物件です。
【周辺ガイド】
小池ビルの周辺は、高級住宅地としての側面を持ちながら、麻布十番に近接することで商業機能や利便性も兼ね備えています。周辺は低層の住宅やマンションが多く、全体的に穏やかで静かな街並みが広がっており、都心にありながら落ち着いて業務に取り組める環境が整っています。一方で、麻布十番エリアへ徒歩圏内でアクセスできるため、都市機能を日常的に活用できる点が特徴です。飲食店は非常に充実しています。麻布十番駅周辺には和食、洋食、中華、イタリアン、フレンチ、カフェ、居酒屋など多彩なジャンルの飲食店が集まっています。昔ながらの老舗店舗から新しいトレンド店舗まで幅広く揃っており、食の選択肢が豊富なエリアです。ランチタイムには短時間で利用できる店舗も多く、日常的な昼食にも便利です。また、落ち着いた雰囲気のレストランや高級感のある店舗も多く、来客との会食や商談にも適した環境が整っています。テイクアウトやデリバリーに対応する店舗も充実しており、オフィス内での食事にも柔軟に対応できます。金融機関についても一定の利便性があります。麻布十番駅周辺には都市銀行や信用金庫のATMコーナーが設置されており、入出金や振込などの基本的な金融手続きを行うことができます。大規模な金融街ではないものの、必要な機能は徒歩圏内で確保されており、日常業務に対応しやすい環境です。郵便局も周辺にあり、契約書や請求書の発送、荷物の受発送などを日常業務の中で対応できます。住宅地としての機能も高いエリアのため、安定した物流環境が整っており、書類や荷物のやり取りが多い業務にも適しています。また、コンビニエンスストアやドラッグストア、スーパーマーケットなどの生活利便施設も周辺に点在しています。日常的な買い物や急な用件にも対応しやすく、オフィス運営を支える環境が整っています。さらに有栖川宮記念公園などの緑地も比較的近く、都心にありながら自然を感じられる点も魅力です。休憩時のリフレッシュや気分転換にも適した環境です。このように小池ビルの周辺は、飲食店、金融機関、郵便局、生活利便施設がバランスよく整ったエリアです。南麻布の落ち着いた住環境と麻布十番の利便性を兼ね備え、快適かつ効率的に業務を行うことができる環境が形成されています。
【評価】3.6
| 駅からの距離 | 設備 | 耐震性 | エントランス |
|---|
小池ビルの周辺地図
「小池ビル」に関するお問合せ
![]() |
|
| このページのURL | https://tokyo.kashi-jimusho.com/detail/36777/ |
|---|---|
株式会社サンエスコーポレーション |
|
| 〒103-0027 東京都中央区日本橋2-2-21 日本橋二丁目ビル5階 | |








