
白金高輪ステーションビル六本木・麻布・白金 港区の賃貸情報
物件番号:36429
住所
港区白金1-27-6白金高輪ステーションビルの募集中物件リスト
| 図面 | 階数 | 面積 | 賃料(共益費込) (坪単価) |
保証金/敷金 | 礼金 | 入居可能日 |
|---|---|---|---|---|---|---|
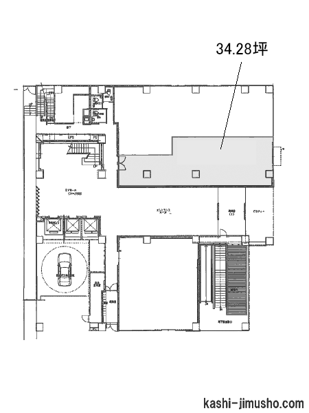
| 1階 |
N 34.28坪 (113.31m2) |
(未公開)
|
(未公開) | 無 | 2026/7 |
- ※取引態様:媒介
- ※フロア図面と現況が異なる場合は現況を優先いたします。
- ※貸室内部の写真・貸室からの景色に関しては、現在の募集フロアと異なる場合がございます。
- ※保証金/敷金以外の費用については別途消費税が必要になります。
- ※各物件により、別途費用が必要な場合には、物件紹介時又は重要事項説明においてご説明いたします。
- ※面積の箇所に表示している N はネット契約(契約面積はオフィス専用部分のみ)、G はグロス契約(契約面積は共用部分を加えた面積)を表しています。
白金高輪ステーションビルの設備概要※-は確認中の表記になります。
| 竣工 | 2003年 | 構造・階建て | S造 地上10階 地下1階 |
|---|---|---|---|
| 耐震 | 新耐震 | 基準階面積 | 210.75坪 |
| エレベーター | 3基、人荷用リフト有、13人乗り以上 | 駐車場 | 有 |
| ビル使用時間 | 24時間使用可 | エントランス | 平日のみ開放 |
| セキュリティ | 機械 | 光ファイバー | 有 |
| 契約種別 | 普通借家契約 | 建替え予定 | - |
| 保証契約 | - |
白金高輪駅から徒歩1分の駅近賃貸オフィス!

村山 賢治
白金高輪ステーションビルは東京都港区白金1-27-6にある賃貸オフィスビルです。白金高輪駅3番出口から直結の好立地です。桜田通り沿いに面しており、視認性抜群で案内しやすい立地です。一面ガラス張りの外観は採光性に優れ、高級感のあるハイグレードなビルです。周辺はマンションやオフィスビルが点在する落ち着いた環境です。広々としたエントランスホールは清潔感がありオフィスの顔に相応しいです。東京メトロ南北線・白金高輪駅、都営地下鉄三田線・白金高輪駅直結、また京急本線・泉岳寺駅、都営地下鉄浅草線・泉岳寺からも徒歩15分圏内でアクセス可能。複数路線からアクセス可能で便利です。2003年竣工の新耐震基準を満たしている為、耐震性は抜群です。構造は鉄骨造・地上10階地下1階建て・基準階約210坪の中規模のオフィスビルです。エントランスは平日8:00-19:00開放、24時間利用可能、機械警備でセキュリティ万全です。32台収容可能な機械式立体駐車場完備、エレベーターは15人乗りを3基設置。執務室内は個別空調・OAフロア・光ファイバー完備、室外に男女別トイレがあります、各階に多目的トイレも設置してあります。天井高約2,800mmを確保した採光性に優れた明るいオフィス空間、柱が少なくレイアウトも自在です。
【周辺ガイド】
白金高輪ステーションビルは港区白金に位置するオフィスビルです。最寄り駅は白金高輪駅A3出口直結で約徒歩1分、泉岳寺駅約徒歩14分など複数路線が利用可能、交通アクセス良好です。周辺はマンションやオフィスビルがある落ち着いた環境です。白金アエルシティ、ドラッグストア マツモトキヨシ 白金高輪店、さわやか信用金庫本店営業部、港区高輪地区総合支所、高輪子ども中高生プラザ、その他飲食店が豊富で評判の良いお店として知られており、ランチ環境など充実しています。スターバックスをはじめとするカフェも多く、ほっと一息つける環境が充実しております。近隣のショッピングモールで終業後のショッピングも楽しめます。
・白金アエルシティ 約90メートル(徒歩約1分)
・さわやか信用金庫本店営業部 約300メートル(徒歩約4分)
・マツモトキヨシ 白金高輪店 約300メートル(徒歩約4分)
・港区高輪地区総合支所 約350メートル(徒歩約4分)
・高輪子ども中高生プラザ 約500メートル(徒歩7分)
【評価】4.5
| 駅からの距離 | 設備 | 耐震性 | エントランス |
|---|
白金高輪ステーションビルの周辺地図
「白金高輪ステーションビル」に関するお問合せ
![]() |
|
| このページのURL | https://tokyo.kashi-jimusho.com/detail/36429/ |
|---|---|
株式会社サンエスコーポレーション |
|
| 〒103-0027 東京都中央区日本橋2-2-21 日本橋二丁目ビル5階 | |











