
市ヶ谷クロスプレイス市ヶ谷・神楽坂 新宿区の賃貸情報
物件番号:33976
住所
新宿区市谷田町2-7-15市ヶ谷クロスプレイスの募集中物件リスト
| 図面 | 階数 | 面積 | 賃料(共益費込) (坪単価) |
保証金/敷金 | 礼金 | 入居可能日 |
|---|---|---|---|---|---|---|
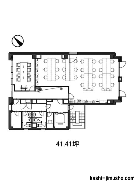
| 3階 |
G 50.82坪 (168.00m2) |
1,168,860 (23,000) |
6ヶ月 | 無 | 2026/7/1 |
- ※取引態様:媒介
- ※フロア図面と現況が異なる場合は現況を優先いたします。
- ※貸室内部の写真・貸室からの景色に関しては、現在の募集フロアと異なる場合がございます。
- ※保証金/敷金以外の費用については別途消費税が必要になります。
- ※各物件により、別途費用が必要な場合には、物件紹介時又は重要事項説明においてご説明いたします。
- ※面積の箇所に表示している N はネット契約(契約面積はオフィス専用部分のみ)、G はグロス契約(契約面積は共用部分を加えた面積)を表しています。
市ヶ谷クロスプレイスの設備概要※-は確認中の表記になります。
| 竣工 | 1993年 | 構造・階建て | SRC造 地上9階 地下2階 |
|---|---|---|---|
| 耐震 | 新耐震 | 基準階面積 | 35.20坪 |
| エレベーター | 2基 | 駐車場 | 無 |
| ビル使用時間 | 24時間使用可 | エントランス | 全日開放(制限有) |
| セキュリティ | 機+有人 | 光ファイバー | 有 |
| 契約種別 | 定期借家契約 | 建替え予定 | - |
| 保証契約 | 有 |
市ヶ谷駅至近!!煉瓦調の高級感漂う貸事務所!!

髙橋 哲二
市ヶ谷エリア。外堀通りに面した賃貸オフィスビル。市ヶ谷クロスプレイスは、新宿区市谷田町、東京メトロ南北線の市ヶ谷駅より徒歩2分圏内の好立地です。東京メトロ有楽町線の市ヶ谷駅より徒歩3分圏内、JR総武線・都営新宿線の市ヶ谷駅より徒歩6分圏内でアクセス可能です。竣工は1991年、鉄骨鉄筋コンクリート造地下2階地上9階建て、新耐震基準を満たしています。エレベーターは乗用11人乗りを1基設置。エントランスは全日開放で、開放時間は6:00~20:00です。時間外には鍵解錠により24時間入退館可能。セキュリティは機械警備で、24時間使用制限はありません。駐車場は2台ございます。オフィスフロアの基準階貸室面積は63.48坪、天井高は2,500mmです。OAフロア、個別空調、光ファイバー導入済。各フロアに室外男女別トイレを設置。快適なオフィス環境です。レンガ貼りの落ち着いた外観、エントランスは大理石貼りで格調高い造り。優美な空間となっています。外堀通り沿いのわかりやすい立地。春にはお堀沿いの綺麗な桜が楽しめる、緑を感じることのできる環境です。複数路線が利用可能、利便性・視認性にも優れた貸事務所です。
【周辺ガイド】
市ヶ谷クロスプレイスは、新宿区市谷田町2-7-15にある物件です。最寄駅は、東京メトロ南北線・東京メトロ有楽町線・JR総武線・都営新宿線の市ヶ谷駅です。複数路線が利用可能でアクセス良好です。電車の利用で、新宿駅等の主要ビジネスエリアへのアクセスもスムーズに可能となっています。市ヶ谷駅周辺は、飲食店やコンビニエンスストアが多く、ランチが楽しめます。市ヶ谷クロスプレイスは、外堀通りに面しているので、視認性が高く来訪者の方にも説明のしやすい立地です。車通りの多い周辺環境となっています。約270メートル(徒歩約3分)の場所に、「新宿保健会館内郵便局」がございます。ビジネスシーンにおいて便利な環境となっています。
・新宿保健会館内郵便局 約270メートル(徒歩約3分)
・三井住友銀行東京メトロ市ケ谷駅出張所 約450メートル(徒歩約6分)
・みずほ銀行 市ヶ谷支店 約600メートル(徒歩約8分)
・セブン-イレブン 新宿市谷田町2丁目店 約120メートル(徒歩約2分)
・ファミリーマート 市谷田町店 約140メートル(徒歩約2分)
【評価】4.2
| 駅からの距離 | 設備 | 耐震性 | エントランス |
|---|
市ヶ谷クロスプレイスの周辺地図
「市ヶ谷クロスプレイス」に関するお問合せ
![]() |
|
| このページのURL | https://tokyo.kashi-jimusho.com/detail/33976/ |
|---|---|
株式会社サンエスコーポレーション |
|
| 〒103-0027 東京都中央区日本橋2-2-21 日本橋二丁目ビル5階 | |














