
ヒノデビル西新宿 新宿区の賃貸情報
物件番号:32195
ヒノデビルの募集中物件リスト
| 図面 | 階数 | 面積 | 賃料(共益費込) (坪単価) |
保証金/敷金 | 礼金 | 入居可能日 |
|---|---|---|---|---|---|---|
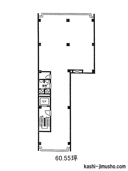
| 3階 |
G 60.55坪 (200.17m2) |
(未公開)
|
5ヶ月 | 無 | 2026/10/10 |
- ※取引態様:媒介
- ※フロア図面と現況が異なる場合は現況を優先いたします。
- ※貸室内部の写真・貸室からの景色に関しては、現在の募集フロアと異なる場合がございます。
- ※保証金/敷金以外の費用については別途消費税が必要になります。
- ※各物件により、別途費用が必要な場合には、物件紹介時又は重要事項説明においてご説明いたします。
- ※面積の箇所に表示している N はネット契約(契約面積はオフィス専用部分のみ)、G はグロス契約(契約面積は共用部分を加えた面積)を表しています。
ヒノデビルの設備概要※-は確認中の表記になります。
| 竣工 | 1972年 | 構造・階建て | RC造 地上7階 地下1階 |
|---|---|---|---|
| 耐震 | 旧耐震 | 基準階面積 | 66.60坪 |
| エレベーター | 1基 | 駐車場 | 無 |
| ビル使用時間 | 24時間使用可 | エントランス | 全日開放(制限有) |
| セキュリティ | 機械 | 光ファイバー | 有 |
| 契約種別 | 定期借家契約 | 建替え予定 | - |
| 保証契約 | 有 |
おすすめポイント!
新宿西口駅から徒歩1分の駅近賃貸オフィス!

複数路線が利用可能で交通アクセス良好です。
シンプルな形状でレイアウトのしやすい貸室です。
トイレは室外で男女別にわかれています。
シンプルな形状でレイアウトのしやすい貸室です。
トイレは室外で男女別にわかれています。
ヒノデビルの周辺地図
「ヒノデビル」に関するお問合せ
![]() |
|
| このページのURL | https://tokyo.kashi-jimusho.com/detail/32195/ |
|---|---|
株式会社サンエスコーポレーション |
|
| 〒103-0027 東京都中央区日本橋2-2-21 日本橋二丁目ビル5階 | |



















