
住友生命蒲田ビル大森・蒲田 南エリアの賃貸情報
物件番号:28910
住友生命蒲田ビルの募集中物件リスト
| 図面 | 階数 | 面積 | 賃料(共益費込) (坪単価) |
保証金/敷金 | 礼金 | 入居可能日 |
|---|---|---|---|---|---|---|
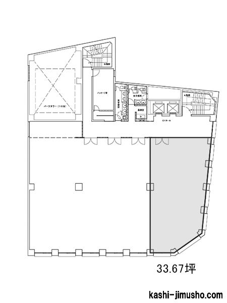
| 2階 |
N 33.67坪 (111.31m2) |
(未公開)
|
12ヶ月 | 無 | 2026/9 |
- ※取引態様:媒介
- ※フロア図面と現況が異なる場合は現況を優先いたします。
- ※貸室内部の写真・貸室からの景色に関しては、現在の募集フロアと異なる場合がございます。
- ※保証金/敷金以外の費用については別途消費税が必要になります。
- ※各物件により、別途費用が必要な場合には、物件紹介時又は重要事項説明においてご説明いたします。
- ※面積の箇所に表示している N はネット契約(契約面積はオフィス専用部分のみ)、G はグロス契約(契約面積は共用部分を加えた面積)を表しています。
住友生命蒲田ビルの設備概要※-は確認中の表記になります。
| 竣工 | 1977年 (改修:2001年) | 構造・階建て | SRC造 地上7階 地下- |
|---|---|---|---|
| 耐震 | 旧耐震 | 基準階面積 | 114.59坪 |
| エレベーター | 1基 | 駐車場 | 有 |
| ビル使用時間 | 24時間使用可 | エントランス | 平日のみ開放 |
| セキュリティ | 機械 | 光ファイバー | 有 |
| 契約種別 | 普通借家契約 | 建替え予定 | - |
| 保証契約 | - |
蒲田エリアにある管理の行き届いた賃貸オフィスビル!

住友生命蒲田ビルは、東京都大田区蒲田4-22-3に位置する地上7階建てのオフィスビルです。1977年2月に竣工し、SRC造で建てられています。交通アクセスは良好で、JR京浜東北線および東急池上線・東急多摩川線が利用できる蒲田駅から徒歩6〜7分、京急本線の京急蒲田駅から徒歩6分で利用可能です。複数路線が利用できることで、品川や東京方面、川崎・横浜方面への移動がしやすく、通勤や営業活動、来客対応にも適した立地です。また京急線を利用することで羽田空港へのアクセスも良好で、出張の多い企業にも適した環境です。建物にはエレベーターが1基設置されており、各フロアへの移動もスムーズです。駐車場は16台分が確保されています。通信環境は光回線に対応しており、高速インターネット環境の構築が可能です。オンライン会議やクラウドサービスなど、現代のビジネスに必要な通信インフラにも対応しやすい設備です。セキュリティは機械警備が導入されており、防犯体制が整えられています。また24時間使用制限がないため、業務時間に縛られず、夜間や早朝の作業にも対応可能です。室内の空調は個別空調方式を採用しており、区画ごとに温度調整が可能です。利用人数や業務内容、時間帯に応じて柔軟に管理できるため、快適な執務環境を維持しやすい仕様です。床はOAフロア仕様となっており、電源や通信配線を床下に整理して設置できます。これにより執務スペースをすっきりと保ちながら、IT機器を多く使用する業務にも対応しやすい環境です。レイアウト変更にも柔軟に対応でき、企業の成長や組織変更にも適応しやすい仕様です。トイレは室外に男女別で設置されており、プライバシーにも配慮されています。
【周辺ガイド】
住友生命蒲田ビルの周辺は、大田区の中心的な商業エリアとして発展しており、駅周辺には大型商業施設やオフィスビル、飲食店街が広がっています。周辺は日中から夜間まで人通りが多く、活気のある街並みが形成されている一方で、少し離れると住宅地も広がっており、バランスの取れた環境が特徴です。ビジネスと生活の両面で利便性が高く、日常業務を行いやすい立地です。飲食店は非常に充実しています。蒲田駅周辺には、和食、洋食、中華、カフェ、居酒屋、ラーメン店など多彩なジャンルの飲食店が集まっています。特に蒲田は飲食店の数が多いことで知られており、ランチタイムには短時間で利用できる店舗が豊富に揃っています。価格帯も幅広く、日常的な昼食から来客対応まで用途に応じて選択しやすい環境です。また、落ち着いた雰囲気のレストランや個室対応の店舗もあり、商談や会食にも対応できます。テイクアウトやデリバリーに対応する店舗も多く、オフィス内での食事にも柔軟に対応できます。金融機関についても利便性の高いエリアです。蒲田駅周辺には都市銀行や地方銀行、信用金庫の支店、ATMが多数設置されており、入出金や振込などの金融手続きを効率的に行うことができます。金融機関の選択肢が豊富で、経理業務や資金管理にも適した環境です。郵便局も周辺に複数あり、契約書や請求書の発送、荷物の受発送などを日常業務の中でスムーズに対応できます。商業エリアとして物流機能も整っており、書類や荷物のやり取りが多い業務にも適しています。また、コンビニエンスストアやドラッグストア、スーパーマーケット、大型商業施設などの生活利便施設も充実しています。日常的な買い物や急な用件にも対応しやすく、オフィス運営を支える環境が整っています。さらに蒲田エリアは商業施設が集積しているため、業務の合間や終業後の利便性も高い点が魅力です。このように住友生命蒲田ビルの周辺は、飲食店、金融機関、郵便局、生活利便施設が非常に充実したエリアです。蒲田の高い利便性と活気ある環境を活かし、快適かつ効率的に業務を行うことができる環境が形成されています。
【評価】3.9
| 駅からの距離 | 設備 | 耐震性 | エントランス |
|---|
住友生命蒲田ビルの周辺地図
「住友生命蒲田ビル」に関するお問合せ
![]() |
|
| このページのURL | https://tokyo.kashi-jimusho.com/detail/28910/ |
|---|---|
株式会社サンエスコーポレーション |
|
| 〒103-0027 東京都中央区日本橋2-2-21 日本橋二丁目ビル5階 | |











