
スカイビジョンビル湯島・本郷 文京区の賃貸情報
物件番号:25857
スカイビジョンビルの募集中物件リスト
| 図面 | 階数 | 面積 | 賃料(共益費込) (坪単価) |
保証金/敷金 | 礼金 | 入居可能日 |
|---|---|---|---|---|---|---|
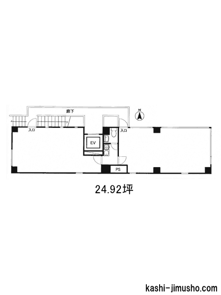
| 3階 |
G 24.92坪 (82.38m2) |
360,000 (14,446) |
3ヶ月 | 1.0ヶ月 | 2026/6 上旬 |
- ※取引態様:媒介
- ※フロア図面と現況が異なる場合は現況を優先いたします。
- ※貸室内部の写真・貸室からの景色に関しては、現在の募集フロアと異なる場合がございます。
- ※保証金/敷金以外の費用については別途消費税が必要になります。
- ※各物件により、別途費用が必要な場合には、物件紹介時又は重要事項説明においてご説明いたします。
- ※面積の箇所に表示している N はネット契約(契約面積はオフィス専用部分のみ)、G はグロス契約(契約面積は共用部分を加えた面積)を表しています。
スカイビジョンビルの設備概要※-は確認中の表記になります。
| 竣工 | 1988年 | 構造・階建て | SRC造 地上10階 地下1階 |
|---|---|---|---|
| 耐震 | 新耐震 | 基準階面積 | 24.92坪 |
| エレベーター | 1基 | 駐車場 | 有 |
| ビル使用時間 | 24時間使用可 | エントランス | 全日開放(24h) |
| セキュリティ | 機械 | 光ファイバー | 有 |
| 契約種別 | 定期借家契約 | 建替え予定 | - |
| 保証契約 | 有 |
おすすめポイント!
本郷三丁目駅から徒歩4分の賃貸オフィス!

複数路線が利用可能で交通アクセス良好です。
デザイン性の高い外観が目を惹きます。
ワンフロア・ワンテナントなので使い勝手の良い貸室です。
デザイン性の高い外観が目を惹きます。
ワンフロア・ワンテナントなので使い勝手の良い貸室です。
スカイビジョンビルの周辺地図
「スカイビジョンビル」に関するお問合せ
![]() |
|
| このページのURL | https://tokyo.kashi-jimusho.com/detail/25857/ |
|---|---|
株式会社サンエスコーポレーション |
|
| 〒103-0027 東京都中央区日本橋2-2-21 日本橋二丁目ビル5階 | |

















