
ルーシッドスクエア東陽町森下・菊川・住吉 東エリアの賃貸情報
物件番号:24362
住所
江東区南砂2-7-5ルーシッドスクエア東陽町の募集中物件リスト
| 図面 | 階数 | 面積 | 賃料(共益費込) (坪単価) |
保証金/敷金 | 礼金 | 入居可能日 |
|---|---|---|---|---|---|---|
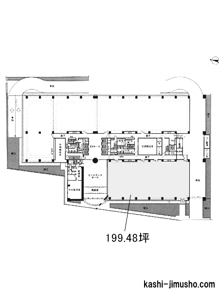
| 1階 |
N 199.48坪 (659.44m2) |
(未公開)
|
12ヶ月 | 無 | 即日 |
- ※取引態様:媒介
- ※フロア図面と現況が異なる場合は現況を優先いたします。
- ※貸室内部の写真・貸室からの景色に関しては、現在の募集フロアと異なる場合がございます。
- ※保証金/敷金以外の費用については別途消費税が必要になります。
- ※各物件により、別途費用が必要な場合には、物件紹介時又は重要事項説明においてご説明いたします。
- ※面積の箇所に表示している N はネット契約(契約面積はオフィス専用部分のみ)、G はグロス契約(契約面積は共用部分を加えた面積)を表しています。
ルーシッドスクエア東陽町の設備概要※-は確認中の表記になります。
| 竣工 | 1991年 | 構造・階建て | S造 地上6階 地下1階 |
|---|---|---|---|
| 耐震 | 新耐震 | 基準階面積 | 763.67坪 |
| エレベーター | 6基、人荷用リフト有、13人乗り以上 | 駐車場 | 有 |
| ビル使用時間 | 24時間使用可 | エントランス | 平日のみ開放 |
| セキュリティ | 機+有人 | 光ファイバー | 有 |
| 契約種別 | 普通借家契約 | 建替え予定 | - |
| 保証契約 | - |
東陽町駅エリアの大型賃貸オフィスビル!

ルーシッドスクエア東陽町は、東京都江東区南砂2-7-5に位置する大型賃貸オフィスビルで、東陽町駅エリアの中でも利便性と快適性を兼ね備えた物件です。最寄り駅は東京メトロ東西線の東陽町駅で、徒歩7分圏内と通勤・来客ともにアクセスしやすい立地です。ルーシッドスクエア東陽町は1991年竣工で、新耐震基準を満たした安心感のある建物です。構造は鉄骨造、地上6階建て(地下1階)で、基準階面積は約764坪の大型フロアを有しています。広々とした空間は、自由度の高いオフィスレイアウトに対応可能で、大規模な部署やフリーアドレスの導入にも適しています。エントランスは平日8:00~19:00に開放されており、来訪者をゆったりと迎え入れる設計です。ビル内にはエレベーターが6基設置されており、朝夕の混雑時でもスムーズに移動できます。駐車場は71台分完備されており、車での通勤や来客にも対応可能です。セキュリティ面では、機械警備と有人警備の併用体制を採用しており、安全性が高く安心して利用できます。光ファイバーが導入されており、高速通信環境も整っているため、情報通信業務やリモートワークにも適した環境です。貸室内は個別空調とOAフロアを完備しており、快適で機能的なオフィス環境が整っています。トイレは室外に設置され、男女別で個室や洗面台も複数完備されているため、清潔かつ効率的に利用できます。水回りが貸室外にあることで、執務スペースを最大限に活用できる点も魅力です。基準階の天井高は2,600mmと十分な高さが確保され、開放感のある空間を実現しています。床荷重は400kg/㎡~500kg/㎡に対応しており、重量のある機器や什器も安心して設置可能です。このように、ルーシッドスクエア東陽町は、東陽町エリアで大型フロアを備えたオフィスをお探しの企業にとって、アクセス利便性・安全性・快適性・設備環境のすべてを兼ね備えた魅力的な賃貸オフィスビルです。
【周辺ガイド】
ルーシッドスクエア東陽町が所在する江東区南砂エリアは、東陽町駅周辺の利便性と閑静さを兼ね備えたビジネス環境として知られています。駅周辺には商業施設や飲食店、金融機関、コンビニエンスストアが豊富に揃っており、日常業務に必要な利便性が確保されています。特にランチや軽食を楽しめる飲食店が多く、社員の休憩や来訪者との打ち合わせにも便利です。周辺は閑静な住宅街とオフィス街が混在しており、落ち着いた街並みが広がります。大型オフィスビルが立ち並ぶ一方で、緑地や運河沿いの散策路なども点在しており、都会的な利便性と自然の安らぎが調和した環境です。平日の昼間はビジネスパーソンが行き交い、周辺施設も活気にあふれていますが、閑静な立地のため業務に集中できる環境が整っています。また、街路や歩道が整備されているため、安全に移動できる点も魅力です。東陽町駅周辺には大型ショッピングモールやスーパーもあり、業務に必要な買い物や急な用事を短時間で済ませることが可能です。さらに、銀行や郵便局、クリニックなどの生活インフラも揃っており、オフィスワーカーの日常をサポートします。飲食店は和食、洋食、中華、カフェなどバリエーションが豊かで、社員のランチだけでなく、クライアントとの会食や打ち合わせにも対応しやすい環境です。交通面では、東西線の利用により大手町や日本橋などの主要ビジネスエリアへのアクセスが良好です。また、バス路線も複数運行しており、都内各方面への移動の幅が広がります。周辺道路も整備されており、車での来訪や配送にも対応しやすい環境です。近隣には再開発エリアもあり、街全体が清潔で整然としているため、安心してオフィス環境として活用できます。
【評価】4.1
| 駅からの距離 | 設備 | 耐震性 | エントランス |
|---|
ルーシッドスクエア東陽町の周辺地図
「ルーシッドスクエア東陽町」に関するお問合せ
![]() |
|
| このページのURL | https://tokyo.kashi-jimusho.com/detail/24362/ |
|---|---|
株式会社サンエスコーポレーション |
|
| 〒103-0027 東京都中央区日本橋2-2-21 日本橋二丁目ビル5階 | |

































