
五反田シティトラストビル五反田・大崎・上大崎 品川区の賃貸情報
物件番号:22582
五反田シティトラストビルの募集中物件リスト
| 図面 | 階数 | 面積 | 賃料(共益費込) (坪単価) |
保証金/敷金 | 礼金 | 入居可能日 |
|---|---|---|---|---|---|---|
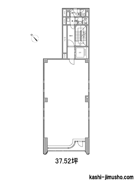
| 2階 |
G 37.52坪 (124.04m2) |
712,880 (19,000) |
6ヶ月 | 1.0ヶ月 | 即日 |
- ※取引態様:媒介
- ※フロア図面と現況が異なる場合は現況を優先いたします。
- ※貸室内部の写真・貸室からの景色に関しては、現在の募集フロアと異なる場合がございます。
- ※保証金/敷金以外の費用については別途消費税が必要になります。
- ※各物件により、別途費用が必要な場合には、物件紹介時又は重要事項説明においてご説明いたします。
- ※面積の箇所に表示している N はネット契約(契約面積はオフィス専用部分のみ)、G はグロス契約(契約面積は共用部分を加えた面積)を表しています。
五反田シティトラストビルの設備概要※-は確認中の表記になります。
| 竣工 | 1986年 | 構造・階建て | S造 地上9階 地下- |
|---|---|---|---|
| 耐震 | 新耐震 | 基準階面積 | 38.18坪 |
| エレベーター | 1基 | 駐車場 | 無 |
| ビル使用時間 | 24時間使用可 | エントランス | オートロック |
| セキュリティ | 機械 | 光ファイバー | 有 |
| 契約種別 | 普通借家契約 | 建替え予定 | - |
| 保証契約 | 有 |
大崎広小路駅から徒歩2分の好立地な賃貸オフィスビル!

武井 創
五反田シティトラストビルは、品川区西五反田1丁目23-7に位置する賃貸オフィスビルで、利便性と機能性を兼ね備えた物件です。最寄り駅は東急池上線の大崎広小路駅で、徒歩2分圏内という非常にアクセスの良い立地にあります。さらに、JR山手線の五反田駅へも徒歩5分圏内、東急池上線・都営浅草線の五反田駅へは徒歩6分圏内、JR山手線・埼京線およびりんかい線の大崎駅へも徒歩7分圏内と複数の駅や路線を利用可能なため、通勤や取引先へのアクセスに非常に便利です。建物は山手通りに面しており、視認性が高い立地となっています。周囲は車通りも多く、人の目に触れやすいため、企業の広告効果も期待できます。1986年竣工の新耐震基準を満たした鉄骨造の地上9階建てで、地下階はありません。基準階面積は約38坪で、コンパクトながら効率的なオフィス運用が可能なスペースが確保されています。エントランスは白を基調とした清潔感あふれるデザインで、訪れる来客を温かく迎えます。平日は朝6時から夜8時まで開放されており、利便性も高いです。館内には9人乗りのエレベーターが1基設置されており、快適な縦移動をサポートします。セキュリティ面では機械警備が導入されているほか、光ファイバー回線も完備されているため、高速通信環境が整っています。貸室内はワンフロア・ワンテナントのレイアウトで、プライバシー性が高く使い勝手に優れています。個別空調システムにより快適な室温管理が可能で、OAフロアも完備されているため、配線の整理やオフィス機器の設置がしやすい環境です。トイレは室外に男女別で設置され、清掃や管理が行き届いています。天井高は2,400mmで、適度な開放感を保ちながら効率的なスペース利用を実現しています。
【周辺ガイド】
五反田シティトラストビルが立地する品川区西五反田エリアは、都内屈指の交通利便性を誇るビジネスエリアとして知られています。五反田エリアは歴史的に多様な企業が集積しているため、大小さまざまなオフィスビルや商業施設が混在しています。山手通り沿いに位置する五反田シティトラストビル周辺は車通りが多く、昼夜を問わず一定の賑わいがあります。近隣には銀行や郵便局、飲食店、コンビニエンスストアなどビジネスに必要なインフラが充実しており、急な用事やランチタイムの外出にも便利です。飲食店はカジュアルなカフェから本格的なレストランまで幅広く、会食や接待にも対応できる環境が整っています。また、五反田は近年再開発が進み、ハイグレードなオフィスビルや商業施設が増加しているエリアでもあります。周辺には大崎駅西口の大型ビル群も近く、新旧の街並みが融合した活気ある都市景観が特徴です。アクセスの良さに加え、周囲の利便施設や多彩な店舗がビジネスパーソンの働きやすさをサポートしています。交通の便だけでなく、五反田はオフィスワーカーの生活環境としても魅力的です。住宅地も隣接しているため、昼夜問わず人の往来が多く、防犯面でも安心感があります。さらに、周辺には公園や緑地も点在し、仕事の合間にリフレッシュできる環境が整っています。
【評価】4.2
| 駅からの距離 | 設備 | 耐震性 | エントランス |
|---|
五反田シティトラストビルの周辺地図
「五反田シティトラストビル」に関するお問合せ
![]() |
|
| このページのURL | https://tokyo.kashi-jimusho.com/detail/22582/ |
|---|---|
株式会社サンエスコーポレーション |
|
| 〒103-0027 東京都中央区日本橋2-2-21 日本橋二丁目ビル5階 | |
















