
渋谷第2TYビル渋谷・神宮前 渋谷区の賃貸情報
物件番号:22058
住所
渋谷区東2-2-8渋谷第2TYビルの募集中物件リスト
| 図面 | 階数 | 面積 | 賃料(共益費込) (坪単価) |
保証金/敷金 | 礼金 | 入居可能日 |
|---|---|---|---|---|---|---|
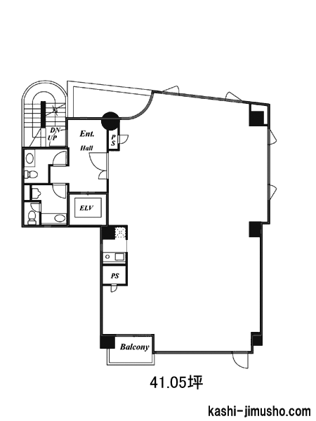
| 4階 |
G 41.05坪 (135.71m2) |
738,900 (18,000) |
6ヶ月 | 1.0ヶ月 | 即日 |
- ※取引態様:媒介
- ※フロア図面と現況が異なる場合は現況を優先いたします。
- ※貸室内部の写真・貸室からの景色に関しては、現在の募集フロアと異なる場合がございます。
- ※保証金/敷金以外の費用については別途消費税が必要になります。
- ※各物件により、別途費用が必要な場合には、物件紹介時又は重要事項説明においてご説明いたします。
- ※面積の箇所に表示している N はネット契約(契約面積はオフィス専用部分のみ)、G はグロス契約(契約面積は共用部分を加えた面積)を表しています。
渋谷第2TYビルの設備概要※-は確認中の表記になります。
| 竣工 | 1991年 | 構造・階建て | SRC造 地上5階 地下- |
|---|---|---|---|
| 耐震 | 新耐震 | 基準階面積 | 41.05坪 |
| エレベーター | 1基 | 駐車場 | 無 |
| ビル使用時間 | 24時間使用可 | エントランス | 全日開放(制限有) |
| セキュリティ | 機械 | 光ファイバー | 有 |
| 契約種別 | 普通借家契約 | 建替え予定 | - |
| 保証契約 | - |
渋谷エリアの静かな環境にある明るく綺麗な賃貸オフィスビル!

野口 椋太
渋谷第2TYビルは、東京都渋谷区東2-2-8に位置する、地上5階建てのオフィスビルです。1991年8月に竣工し、SRC造で建てられています。新耐震基準に適合している為、長期的に安心して利用できます。交通面では、JR山手線およびJR埼京線の渋谷駅から徒歩9分、東京メトロ銀座線・半蔵門線・副都心線の渋谷駅から徒歩10分で利用できます。複数路線が集まる渋谷駅を利用できるため、都内各方面への移動に対応しやすく、通勤や外出を伴う業務にも柔軟に対応できます。建物内にはエレベーターが1基設置されており、各フロアへの移動もスムーズです。通信環境については光回線に対応しており、インターネットを利用した業務やデータ通信、オンライン会議などにも対応できます。ビジネスに必要な通信環境を前提とした運用が可能です。安定した通信インフラが整っている点は、日常業務を支える要素のひとつです。セキュリティ面では機械警備が導入されており、入退館管理や防犯面に配慮された体制が整えられています。業務時間外においても一定の安全性が確保されており、オフィス利用として基本的な安心感があります。また、24時間使用に制限がないため、早朝や夜間の業務、時間帯にとらわれない運用にも対応できます。作業時間が一定でない業態にも対応しやすい点が特徴です。室内は個別空調方式となっており、区画ごとに温度調整が可能です。季節や執務人数、業務内容に応じて室内環境を調整しやすく、快適な執務空間を維持できます。床はタイルカーペット仕様となっており、落ち着いた印象を保ちながら、日常的な清掃やメンテナンスにも配慮された構成です。トイレは室外に男女別で設置されており、執務スペースを効率的に使用できる点も特徴です。このように、渋谷第2TYビルは、さまざまな企業にとって魅力的な物件です。
【周辺ガイド】
渋谷第2TYビルの周辺は、オフィスビルや事業所、住宅などが混在しています。周辺の飲食環境は比較的充実しており、日常使いしやすい店舗が点在しています。和食や洋食、カフェを中心に、近隣で働く人を意識した店舗が多く、ランチタイムには短時間で利用できる店から、比較的ゆったりと食事ができる店まで選択肢があります。渋谷エリアに近いことから、ジャンルの幅も広く、日々の食事に変化をつけやすい点が特徴です。テイクアウトに対応している店舗もあり、業務の状況に合わせて柔軟に利用できます。日常利便施設についても周囲に揃っており、コンビニエンスストアやドラッグストア、各種サービス店舗を徒歩圏内で利用できます。飲料や軽食、日用品、消耗品などを身近で調達できるため、業務中の急な買い出しや日常の用事にも対応しやすい環境です。また、銀行のATMや郵便関連施設も利用しやすい範囲にあり、振込や書類発送といった日常的な業務を周辺で完結できます。こうした施設が近くに集まっている点は、業務の流れを途切れさせにくい要素となっています。さらに、周辺にはクリニックや調剤薬局などの医療関連施設も点在しており、体調管理や通院が必要な場合にも対応しやすい環境です。オフィスワーカーと居住者の双方が多いエリアであるため、生活に必要な機能が自然に揃っており、日々の業務や生活を支える基盤が整っています。加えて、小規模なサービス施設や各種店舗も多く、複数の用事をまとめて済ませやすい点も特徴です。渋谷駅周辺の機能を利用しやすい位置関係にあることから、外部からの来訪者対応や、業務に伴う打ち合わせ、外出の際にも利便性を感じやすい環境です。このように、渋谷第2TYビルの周辺は、飲食店や生活利便施設、医療関連施設などが無理なく揃った環境です。渋谷エリアの都市機能を身近に利用しながら、業務を進めやすい環境が形成されています。
【評価】3.6
| 駅からの距離 | 設備 | 耐震性 | エントランス |
|---|
渋谷第2TYビルの周辺地図
「渋谷第2TYビル」に関するお問合せ
![]() |
|
| このページのURL | https://tokyo.kashi-jimusho.com/detail/22058/ |
|---|---|
株式会社サンエスコーポレーション |
|
| 〒103-0027 東京都中央区日本橋2-2-21 日本橋二丁目ビル5階 | |


















