
渋谷道玄坂東急ビル渋谷・神宮前 渋谷区の賃貸情報
物件番号:20853
住所
渋谷区道玄坂1-10-8渋谷道玄坂東急ビルの募集中物件リスト
| 図面 | 階数 | 面積 | 賃料(共益費込) (坪単価) |
保証金/敷金 | 礼金 | 入居可能日 |
|---|---|---|---|---|---|---|
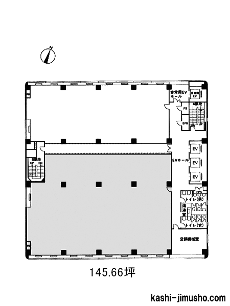
| 6階 |
N 145.66坪 (481.55m2) |
(未公開)
|
12ヶ月 | 無 | 2026/7/1 |
- ※取引態様:媒介
- ※フロア図面と現況が異なる場合は現況を優先いたします。
- ※貸室内部の写真・貸室からの景色に関しては、現在の募集フロアと異なる場合がございます。
- ※保証金/敷金以外の費用については別途消費税が必要になります。
- ※各物件により、別途費用が必要な場合には、物件紹介時又は重要事項説明においてご説明いたします。
- ※面積の箇所に表示している N はネット契約(契約面積はオフィス専用部分のみ)、G はグロス契約(契約面積は共用部分を加えた面積)を表しています。
渋谷道玄坂東急ビルの設備概要※-は確認中の表記になります。
| 竣工 | 1983年 | 構造・階建て | SRC造 地上11階 地下1階 |
|---|---|---|---|
| 耐震 | 新耐震 | 基準階面積 | 251.21坪 |
| エレベーター | 4基、人荷用リフト有、13人乗り以上 | 駐車場 | 有 |
| ビル使用時間 | 24時間使用可 | エントランス | 平日のみ開放 |
| セキュリティ | 有人 | 光ファイバー | 有 |
| 契約種別 | 定期借家契約 | 建替え予定 | - |
| 保証契約 | - |
おすすめポイント!
渋谷エリア!玉川通りに面したきれいな大型ビル!

白パネルの外観でグレード感あふれるビル!
ゆったり広々としたエントランスは、イメージ抜群!
窓面の多い明るい室内!
ゆったり広々としたエントランスは、イメージ抜群!
窓面の多い明るい室内!
渋谷道玄坂東急ビルの周辺地図
「渋谷道玄坂東急ビル」に関するお問合せ
![]() |
|
| このページのURL | https://tokyo.kashi-jimusho.com/detail/20853/ |
|---|---|
株式会社サンエスコーポレーション |
|
| 〒103-0027 東京都中央区日本橋2-2-21 日本橋二丁目ビル5階 | |














