
祐真ビル本館8F 136.40坪渋谷・神宮前 渋谷区の賃貸情報
物件番号: 20367
渋谷駅複数路線が利用可能!アクセス便利な高級感ある賃貸オフィスビル!
- 検討リストに追加
| 図面 | 階数 | 坪数 | 保証金/敷金 | 礼金 | 賃料(坪単価) | 共益費(坪単価) | 更新料/ 再契約料 |
償却 | 入居可能日 |
|---|---|---|---|---|---|---|---|---|---|
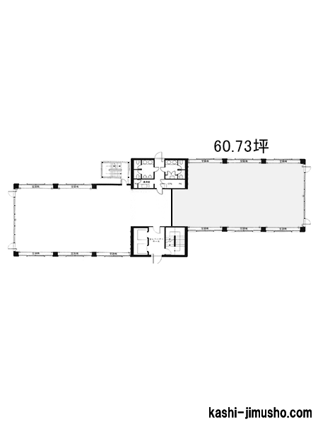
| 8階 | G 136.40坪 (450.91m2) |
12ヶ月 | 無 |
(未公開)
|
545,600円 (4,000円) |
無 | 無 | 即日 | |
| 【空調】個別 【床仕様】OAフロア 【トイレ】室内男女別 【天井高】2,500mm | |||||||||
|
|
|||||||||
※面積の箇所に表示している N はネット契約(契約面積はオフィス専用部分のみ)、G はグロス契約(契約面積は共用部分を加えた面積)を表しています。
祐真ビル本館8階136.40坪(渋谷区渋谷)の周辺MAP
祐真ビル本館8階136.40坪(渋谷区渋谷)の設備
| 竣工 | 1987年 (改修:2001年) | 構造・階建て | SRC造 地上9階 地下1階 |
|---|---|---|---|
| 耐震 | 新耐震 | 基準階面積 | 136.40坪 |
| エレベーター | 2基 | 駐車場 | 有 |
| ビル使用時間 | 24時間使用可 | エントランス | 平日・土開放 |
| セキュリティ | 機械 | 光ファイバー | 有 |
祐真ビル本館8階136.40坪(渋谷区渋谷)のギャラリー
※室内の写真は該当区画ではございません。
祐真ビル本館の他フロアの募集リスト
| 図面 | 階数 | 面積 | 賃料(共益費込) (坪単価) |
保証金/敷金 | 礼金 | 入居可能日 | |
|---|---|---|---|---|---|---|---|
| 9階 |
G 136.40坪 (450.91m2) |
(未公開)
|
12ヶ月 | 無 | 即日 |
|
- ※取引態様:媒介
- ※フロア図面と現況が異なる場合は現況を優先いたします。
- ※貸室内部の写真・貸室からの景色に関しては、現在の募集フロアと異なる場合がございます。
- ※保証金/敷金以外の費用については別途消費税が必要になります。
- ※各物件により、別途費用が必要な場合には、物件紹介時又は重要事項説明においてご説明いたします。
- ※面積の箇所に表示している『N』はネット契約(契約面積はオフィス専用部分のみ)『G』はグロス契約(契約面積は共用部分を加えた面積)を表しています。
祐真ビル本館の近隣物件リスト
「祐真ビル本館」に関するお問合せ
![]() |
|
| このページのURL | https://tokyo.kashi-jimusho.com/detail/20367/81631/ |
|---|---|
株式会社サンエスコーポレーション |
|
| 〒103-0027 東京都中央区日本橋2-2-21 日本橋二丁目ビル5階 | |






























