
ロングヒル原宿ビル渋谷・神宮前 渋谷区の賃貸情報
物件番号:20110
ロングヒル原宿ビルの募集中物件リスト
| 図面 | 階数 | 面積 | 賃料(共益費込) (坪単価) |
保証金/敷金 | 礼金 | 入居可能日 |
|---|---|---|---|---|---|---|
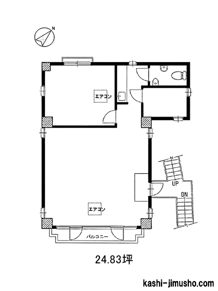
| 2階 |
G 24.83坪 (82.09m2) |
400,000 (16,110) |
4ヶ月 | 2.0ヶ月 | 相談 |
- ※取引態様:媒介
- ※フロア図面と現況が異なる場合は現況を優先いたします。
- ※貸室内部の写真・貸室からの景色に関しては、現在の募集フロアと異なる場合がございます。
- ※保証金/敷金以外の費用については別途消費税が必要になります。
- ※各物件により、別途費用が必要な場合には、物件紹介時又は重要事項説明においてご説明いたします。
- ※面積の箇所に表示している N はネット契約(契約面積はオフィス専用部分のみ)、G はグロス契約(契約面積は共用部分を加えた面積)を表しています。
ロングヒル原宿ビルの設備概要※-は確認中の表記になります。
| 竣工 | 1992年 | 構造・階建て | RC造 地上3階 地下- |
|---|---|---|---|
| 耐震 | 新耐震 | 基準階面積 | |
| エレベーター | 無 | 駐車場 | 無 |
| ビル使用時間 | 24時間使用可 | エントランス | 全日開放(24h) |
| セキュリティ | 無 | 光ファイバー | 確認中 |
| 契約種別 | 定期借家契約 | 建替え予定 | - |
| 保証契約 | 有 |
神宮前エリアの賃貸オフィス!

野口 椋太
静けさと感性が共存する原宿の一角に佇む「ロングヒル原宿ビル」です。表通りから少し入った落ち着きのある立地にあり、原宿や表参道といったトレンドの発信地に徒歩圏内という、魅力的なポジションにあります。1988年6月に竣工した地上7階建てのRC造で、新耐震基準にも対応しており、安心してご利用いただけるビルです。外観はコンクリート打ち放しのモダンなデザインで、シンプルながらも洗練された印象を与える建物となっています。最寄り駅は、銀座線の外苑前駅と、副都心線・千代田線の明治神宮前駅がそれぞれ徒歩9分、さらにJR山手線の原宿駅や半蔵門線の表参道駅も徒歩11分で利用可能。住宅や低層のマンションが立ち並ぶエリアで、静かで穏やかな雰囲気が日々の業務に集中しやすい環境を生み出しています。建物は24時間利用が可能で、働く時間に制限がない点も魅力。フレキシブルな働き方や、クリエイティブな時間を必要とする業種にとっては、大きなメリットです。明治神宮や神宮外苑といった緑豊かなスポットも徒歩圏内にあり、都会にいながら自然を感じられる点もこのエリアの大きな魅力です。都市の利便性と、静けさ・感性のバランスが取れた「ロングヒル原宿ビル」は、自分たちらしい働き方を大切にする企業にとって、居心地の良い拠点となるはずです。
【周辺ガイド】
ロングヒル原宿ビルが位置する渋谷区神宮前三丁目は、原宿・表参道エリアの中心から少し奥まった場所にありながら、利便性と落ち着きを兼ね備えた魅力的な環境です。周辺は住宅や低層のマンションが多く、静かな街並みが広がっています。国内外から多くの人が訪れる原宿・表参道の賑やかな商業エリアとは一線を画し、静かで落ち着いた雰囲気が特徴です。街の散策路としても人気のキャットストリートや、洗練されたショップが集まる表参道ヒルズも徒歩圏内にあり、仕事の合間や終了後に気軽に立ち寄ることができます。また、表参道沿いには、ルイ・ヴィトンやシャネルなどの高級ブランド店が軒を連ねており、ファッションやアートの最先端に触れられる文化的な環境も魅力の一つです。近隣には明治神宮や神宮外苑も位置しており、豊かな自然と歴史ある景観が日常の喧騒を忘れさせてくれます。明治神宮は都心最大級の緑地であり、参道の鳥居や本殿の荘厳な佇まいは、地域のシンボルとして親しまれています。神宮外苑には美しいイチョウ並木やスポーツ施設が整備されており、四季折々の自然を感じながらリフレッシュできる憩いの場です。都心にいながらこれほど自然と触れ合える環境は、働く人々の心身の健康にも良い影響を与えるでしょう。また、国立競技場も近くにあり、スポーツやイベント開催時には活気あふれる雰囲気が感じられます。ロングヒル原宿ビル周辺は、都心の利便性と落ち着いた環境、文化的な刺激、そして豊かな自然がバランスよく調和したエリアです。
【評価】3.5
| 駅からの距離 | 設備 | 耐震性 | エントランス |
|---|
ロングヒル原宿ビルの周辺地図
「ロングヒル原宿ビル」に関するお問合せ
![]() |
|
| このページのURL | https://tokyo.kashi-jimusho.com/detail/20110/ |
|---|---|
株式会社サンエスコーポレーション |
|
| 〒103-0027 東京都中央区日本橋2-2-21 日本橋二丁目ビル5階 | |








