
三田日東ダイビル田町・三田・芝 港区の賃貸情報
物件番号:16422
三田日東ダイビルの募集中物件リスト
| 図面 | 階数 | 面積 | 賃料(共益費込) (坪単価) |
保証金/敷金 | 礼金 | 入居可能日 |
|---|---|---|---|---|---|---|
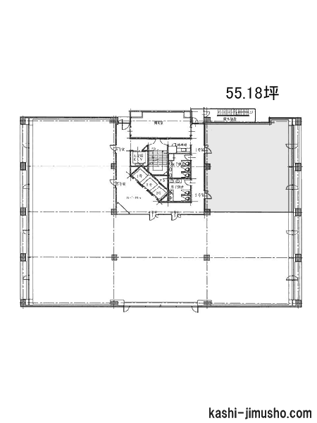
| 2階 |
N 55.18坪 (182.41m2) |
(未公開)
|
(未公開) | 無 | 即日 | |
| 2階 |
N 85.42坪 (282.38m2) |
(未公開)
|
(未公開) | 無 | 2026/7 |
- ※取引態様:媒介
- ※フロア図面と現況が異なる場合は現況を優先いたします。
- ※貸室内部の写真・貸室からの景色に関しては、現在の募集フロアと異なる場合がございます。
- ※保証金/敷金以外の費用については別途消費税が必要になります。
- ※各物件により、別途費用が必要な場合には、物件紹介時又は重要事項説明においてご説明いたします。
- ※面積の箇所に表示している N はネット契約(契約面積はオフィス専用部分のみ)、G はグロス契約(契約面積は共用部分を加えた面積)を表しています。
三田日東ダイビルの設備概要※-は確認中の表記になります。
| 竣工 | 1986年 (改修:2015年) | 構造・階建て | SRC造 地上8階 地下1階 |
|---|---|---|---|
| 耐震 | 新耐震 | 基準階面積 | 283.00坪 |
| エレベーター | 4基 | 駐車場 | 有 |
| ビル使用時間 | 24時間使用可 | エントランス | 平日・土開放 |
| セキュリティ | 機械 | 光ファイバー | 有 |
| 契約種別 | 定期借家契約 | 建替え予定 | - |
| 保証契約 | - |
泉岳寺駅から徒歩3分!第一京浜に面した賃貸オフィスビル!

村山 賢治
三田日東ダイビルは、東京都港区三田3-11-36に位置する地上8階建て地下1階のオフィスビルです。1986年9月に竣工し、SRC造で建てられています。新耐震基準に適合しており、安全性にも優れています。交通アクセスは良好で、都営浅草線および京急本線の泉岳寺駅から徒歩3分、都営三田線の三田駅から徒歩7分、JR山手線・京浜東北線の高輪ゲートウェイ駅から徒歩8分で利用可能です。複数駅・複数路線を活用できるため、都内主要エリアや羽田空港方面への移動がしやすく、通勤や外出、取引先訪問、来客対応など業務に伴う移動を効率的に行える立地です。建物にはエレベーターが4基設置されており、各フロアへの移動もスムーズです。敷地内には25台分の駐車場が用意されています。通信環境は光回線に対応しており、オンライン会議やクラウドサービスを活用する業務にも適したインフラを備えています。セキュリティ面では機械警備が導入されており、入退館管理や防犯体制が整っています。24時間使用制限がないため、業務時間が固定されない企業や多様な働き方にも対応可能です。空調はセントラル方式を採用しており、ビル全体で安定した空調管理を行います。一定の温度管理を保ちながら、効率的な運用が可能です。床はOAフロア仕様となっており、電源や通信配線を床下に整理できます。レイアウト変更や機器増設にも柔軟に対応でき、組織変更や事業拡張にも順応可能です。トイレは室外に男女別で設置されており、プライバシーにも配慮されています。
【周辺ガイド】
三田日東ダイビルの周辺は、オフィスビルや企業の事務所が多く立ち並ぶ一方、住宅や教育施設も混在する落ち着いた街並みが特徴です。ビジネス利用を前提とした環境が整っており、平日の日中は周辺で勤務するビジネスパーソンの活動が中心となっています。飲食店については、泉岳寺駅周辺や三田駅方面にかけて飲食店が点在しています。和食、洋食、中華、定食、カフェなど多様なジャンルの店舗があり、ランチタイムの選択肢が確保されています。回転の早い店舗もあり、業務の合間に効率よく食事を取ることができます。また、落ち着いた雰囲気の店舗も見られ、来客時の昼食や簡単な打ち合わせにも対応しやすい地域です。テイクアウトに対応している店舗もあり、オフィス内での食事にも柔軟に対応できます。金融機関については、都市銀行や信用金庫の支店、ATMが三田・田町方面を中心に揃っています。入出金や振込などの金融手続きを業務の流れの中で行いやすく、経理処理や資金管理が発生する企業にとって利便性のある立地です。複数の金融機関を用途に応じて利用できる点も実務面での強みとなります。郵便局も周辺にあり、契約書や請求書の発送、荷物の受発送などを日常業務の中で対応できます。書類のやり取りが多い業務においても、移動の負担を抑えながら処理できる環境です。また、コンビニエンスストアやドラッグストア、日用品を扱う店舗も点在しており、業務に必要な消耗品や備品の購入にも対応しやすい地域です。再開発が進む高輪ゲートウェイエリアにも近く、今後のエリア価値向上も見込まれる環境にあります。このように、三田日東ダイビルの周辺は、飲食店、金融機関、郵便局、生活利便施設が揃ったビジネス向けのエリアです。三田・泉岳寺エリアの都市機能を活用できる環境が整っており、継続的なオフィス利用を支える環境が形成されています。
【評価】4.2
| 駅からの距離 | 設備 | 耐震性 | エントランス |
|---|
三田日東ダイビルの周辺地図
「三田日東ダイビル」に関するお問合せ
![]() |
|
| このページのURL | https://tokyo.kashi-jimusho.com/detail/16422/ |
|---|---|
株式会社サンエスコーポレーション |
|
| 〒103-0027 東京都中央区日本橋2-2-21 日本橋二丁目ビル5階 | |


































