
BR芝浦Nビル田町・三田・芝 港区の賃貸情報
物件番号:15990
BR芝浦Nビルの募集中物件リスト
| 図面 | 階数 | 面積 | 賃料(共益費込) (坪単価) |
保証金/敷金 | 礼金 | 入居可能日 |
|---|---|---|---|---|---|---|
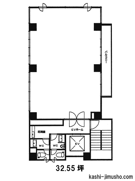
| 2階 |
G 32.55坪 (107.60m2) |
(未公開)
|
(未公開) | 無 | 2026/10/14 |
- ※取引態様:媒介
- ※フロア図面と現況が異なる場合は現況を優先いたします。
- ※貸室内部の写真・貸室からの景色に関しては、現在の募集フロアと異なる場合がございます。
- ※保証金/敷金以外の費用については別途消費税が必要になります。
- ※各物件により、別途費用が必要な場合には、物件紹介時又は重要事項説明においてご説明いたします。
- ※面積の箇所に表示している N はネット契約(契約面積はオフィス専用部分のみ)、G はグロス契約(契約面積は共用部分を加えた面積)を表しています。
BR芝浦Nビルの設備概要※-は確認中の表記になります。
| 竣工 | 1991年 | 構造・階建て | SRC造 地上7階 地下- |
|---|---|---|---|
| 耐震 | 新耐震 | 基準階面積 | 32.55坪 |
| エレベーター | 1基、13人乗り以上 | 駐車場 | 無 |
| ビル使用時間 | 24時間使用可 | エントランス | 平日・土開放 |
| セキュリティ | 機械 | 光ファイバー | 有 |
| 契約種別 | - | 建替え予定 | - |
| 保証契約 | - |
田町エリア!設備が整った快適な賃貸オフィス!

武井 創
BR芝浦Nビルは、港区芝浦3-20-9にある物件です。徒歩5分圏内でJR山手線・JR京浜東北線の田町駅、徒歩7分圏内で都営浅草線・都営三田線の三田駅が利用可能となっています。複数路線が利用可能でアクセス良好です。電車の利用で、主要ビジネスエリアへのアクセスもスムーズに可能となっています。大通りに面しているので、視認性が高く来訪者の方にも説明のしやすい立地です。車通りの多い周辺環境となっています。BR芝浦Nビルは、1991年竣工の新耐震基準を満たした物件です。構造は、鉄骨鉄筋コンクリート造・地上7階建て(地下階なし)、基準階は約32坪の賃貸オフィスビルです。エントランスは、平日・土曜6:00~20:00の間、開放されています。ビル内には、13人乗りのエレベーターが1基設置されています。機械警備、光ファイバーが完備されています。24時間使用可能で、使用時間の制限はありません。貸室内は、ワンフロア・ワンテナントで使い勝手良好です。個別空調・OAフロアが完備されています。トイレは室外で男女別になっています。水回りが室外にあるので、レイアウト効率の良い貸室内です。基準階の天高は、2,500mmです。
【周辺ガイド】
BR芝浦Nビルは、東京都港区芝浦3-20-9にあるオフィスビルです。大通り沿いに位置する視認性抜群の立地です。最寄り駅は田町駅で徒歩5分圏内でアクセス可能です。また、三田駅も徒歩圏内で利用可能です。複数路線が利用できる利便性の高い立地です。主要ビジネスエリアへのアクセスもスムーズに可能となっています。大通り沿いにはバス停があり、バスでのアクセスも良好です。周辺はオフィスビルや住居、公園などが多くある芝浦エリアです。緑豊かで落ち着いた環境です。駅周辺には飲食店があるので、ランチ時や夕食時のお店選びに困りません。田町駅前にはなぎさテラスやグランパークプラザがあり、ちょっとしたお買い物に便利です。
・みずほ銀行 芝支店 約750メートル(徒歩約9分)
・三菱UFJ銀行 三田支店 約800メートル(徒歩約10分)
・三井住友銀行 三田通支店 約750メートル(徒歩約10分)
・グランパークプラザ 約350メートル(徒歩約4分)
・港芝浦郵便局 約300メートル(徒歩約4分)
【評価】3.9
| 駅からの距離 | 設備 | 耐震性 | エントランス |
|---|
BR芝浦Nビルの周辺地図
「BR芝浦Nビル」に関するお問合せ
![]() |
|
| このページのURL | https://tokyo.kashi-jimusho.com/detail/15990/ |
|---|---|
株式会社サンエスコーポレーション |
|
| 〒103-0027 東京都中央区日本橋2-2-21 日本橋二丁目ビル5階 | |








