
メトロシティ神谷町虎ノ門・神谷町 港区の賃貸情報
物件番号:14632
メトロシティ神谷町の募集中物件リスト
| 図面 | 階数 | 面積 | 賃料(共益費込) (坪単価) |
保証金/敷金 | 礼金 | 入居可能日 |
|---|---|---|---|---|---|---|
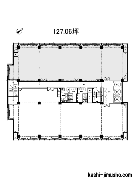
| 8階 |
N 127.06坪 (420.03m2) |
(未公開)
|
12ヶ月 | 無 | 2026/6/1 |
- ※取引態様:媒介
- ※フロア図面と現況が異なる場合は現況を優先いたします。
- ※貸室内部の写真・貸室からの景色に関しては、現在の募集フロアと異なる場合がございます。
- ※保証金/敷金以外の費用については別途消費税が必要になります。
- ※各物件により、別途費用が必要な場合には、物件紹介時又は重要事項説明においてご説明いたします。
- ※面積の箇所に表示している N はネット契約(契約面積はオフィス専用部分のみ)、G はグロス契約(契約面積は共用部分を加えた面積)を表しています。
メトロシティ神谷町の設備概要※-は確認中の表記になります。
| 竣工 | 1987年 | 構造・階建て | RC造 地上8階 地下2階 |
|---|---|---|---|
| 耐震 | 新耐震 | 基準階面積 | 284.20坪 |
| エレベーター | 3基、13人乗り以上 | 駐車場 | 有 |
| ビル使用時間 | 24時間使用可 | エントランス | 平日・土開放 |
| セキュリティ | 機械 | 光ファイバー | 有 |
| 契約種別 | 定期借家契約 | 建替え予定 | - |
| 保証契約 | - |
神谷町駅から徒歩1分の駅近賃貸オフィス!

村山 賢治
メトロシティ神谷町は、落ち着いた色合いの外壁と前面のガラス張りがシックな印象を感じさせる賃貸オフィスビルです。港区虎ノ門5-1-5に位置し、東京メトロ日比谷線の神谷町駅に直結しているため、徒歩1分圏内でアクセス可能な好立地です。都営三田線の御成門駅も徒歩10分圏内で利用可能です。桜田通りに面する角ビルのため、高い視認性・採光性が期待できます。1986年10月竣工、鉄筋コンクリート造・地上8階(地下2階)建てで、新耐震基準を満たしています。基準階面積は、約281坪です。エレベーターは3基あります。機械式駐車場は計40台あります。エントランスはモノトーンの色使いと広々と感じられる開放感が特徴的です。平日:8:00~21:00・土曜:8:00~18:00、開いています。光ファイバー・機械警備が完備されています。24時間、ビルの使用が可能です。敷地内に駐輪スペースがあります。基準階の貸室内には、セントラル空調と個別空調が完備されています。貸室外に男女別トイレがあり、個室と洗面台が複数あります。配線を床下にスッキリと収納できる、OAフロアとなっています。基準階の天井高は2,550mmで、床荷重は450kg/㎡です。
【周辺ガイド】
メトロシティ神谷町は、東京都港区虎ノ門5-1-4にあるオフィスビルです。桜田通り沿いの角地に位置する視認性抜群の立地です。最寄り駅は神谷町駅で駅直結の為、悪天候にもアクセス良好です。また、虎ノ門駅・六本木一丁目駅・御成門駅も徒歩圏内で利用可能です。複数路線が利用可能でアクセス良好です。徒歩圏内にはバス停があるので、バスでのアクセスも可能です。周辺はオフィスビルや店舗が多くある新橋エリアです。人通りが多く活気あふれる環境です。駅周辺には飲食店が豊富にあるので、ランチ時や夕食時のお店選びに困りません。新橋駅方面にはショッピングモールがあるので、ちょっとしたお買い物に便利です。徒歩圏内には美術館や浜離宮恩賜庭園などがあります。充実した環境でオフィスを構えるのに最適な立地です。
・三菱UFJ銀行 虎ノ門支店 約650メートル(徒歩約8分)
・みずほ銀行 虎ノ門支店 約950メートル(徒歩約12分)
・神谷町郵便局 約120メートル(徒歩約1分)
・オークラ プレステージタワー 約400メートル(徒歩約5分)
・愛宕神社 約350メートル(徒歩約5分)
【評価】4.5
| 駅からの距離 | 設備 | 耐震性 | エントランス |
|---|
メトロシティ神谷町の周辺地図
「メトロシティ神谷町」に関するお問合せ
![]() |
|
| このページのURL | https://tokyo.kashi-jimusho.com/detail/14632/ |
|---|---|
株式会社サンエスコーポレーション |
|
| 〒103-0027 東京都中央区日本橋2-2-21 日本橋二丁目ビル5階 | |



















