
EM南麻布ビル六本木・麻布・白金 港区の賃貸情報
物件番号:13125
住所
港区南麻布2-13-12EM南麻布ビルの募集中物件リスト
| 図面 | 階数 | 面積 | 賃料(共益費込) (坪単価) |
保証金/敷金 | 礼金 | 入居可能日 |
|---|---|---|---|---|---|---|
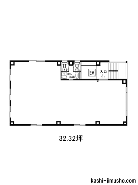
| 6階 |
G 32.32坪 (106.83m2) |
479,951 (14,850) |
3ヶ月 | 1.0ヶ月 | 2026/7 |
- ※取引態様:媒介
- ※フロア図面と現況が異なる場合は現況を優先いたします。
- ※貸室内部の写真・貸室からの景色に関しては、現在の募集フロアと異なる場合がございます。
- ※保証金/敷金以外の費用については別途消費税が必要になります。
- ※各物件により、別途費用が必要な場合には、物件紹介時又は重要事項説明においてご説明いたします。
- ※面積の箇所に表示している N はネット契約(契約面積はオフィス専用部分のみ)、G はグロス契約(契約面積は共用部分を加えた面積)を表しています。
EM南麻布ビルの設備概要※-は確認中の表記になります。
| 竣工 | 1998年 | 構造・階建て | RC造 地上8階 地下2階 |
|---|---|---|---|
| 耐震 | 新耐震 | 基準階面積 | 32.32坪 |
| エレベーター | 1基 | 駐車場 | 有 |
| ビル使用時間 | 24時間使用可 | エントランス | 全日開放(24h) |
| セキュリティ | 無 | 光ファイバー | 有 |
| 契約種別 | 定期借家契約 | 建替え予定 | - |
| 保証契約 | 有 |
おすすめポイント!
港区南麻布エリア!閑静な立地のワンフロア・ワンテナント物件!

白金高輪駅から徒歩7分、複数路線が利用できます。
大通りから少し入った閑静な住宅街、落ち着いた環境です。
室内の形が良いのでレイアウト効率も良い物件です。
大通りから少し入った閑静な住宅街、落ち着いた環境です。
室内の形が良いのでレイアウト効率も良い物件です。
EM南麻布ビルの周辺地図
「EM南麻布ビル」に関するお問合せ
![]() |
|
| このページのURL | https://tokyo.kashi-jimusho.com/detail/13125/ |
|---|---|
株式会社サンエスコーポレーション |
|
| 〒103-0027 東京都中央区日本橋2-2-21 日本橋二丁目ビル5階 | |















