
麹町ビル2F 153.01坪九段・飯田橋・水道橋 千代田区の賃貸情報
物件番号: 1091
千代田区九段南!角ビル!窓面が大きく明るい貸事務所!
- 検討リストに追加
| 図面 | 階数 | 坪数 | 保証金/敷金 | 礼金 | 賃料(坪単価) | 共益費(坪単価) | 更新料/ 再契約料 |
償却 | 入居可能日 |
|---|---|---|---|---|---|---|---|---|---|
| 2階 | N 153.01坪 (505.82m2) |
12ヶ月 | 無 |
(未公開)
|
(未公開) | 無 | 無 | 2026/10 | |
| 【空調】セントラル+個別 【床仕様】OAフロア 【トイレ】室外男女別 【天井高】2,500mm | |||||||||
|
|
|||||||||
※面積の箇所に表示している N はネット契約(契約面積はオフィス専用部分のみ)、G はグロス契約(契約面積は共用部分を加えた面積)を表しています。
麹町ビル2階153.01坪(千代田区九段南)の周辺MAP
麹町ビル2階153.01坪(千代田区九段南)の設備
| 竣工 | 1988年 (改修:2013年) | 構造・階建て | SRC造 地上7階 地下- |
|---|---|---|---|
| 耐震 | 新耐震 | 基準階面積 | 241.05坪 |
| エレベーター | 2基、13人乗り以上 | 駐車場 | 無 |
| ビル使用時間 | 24時間使用可 | エントランス | 平日・土開放 |
| セキュリティ | 機械 | 光ファイバー | 有 |
麹町ビル2階153.01坪(千代田区九段南)のギャラリー
麹町ビルの他フロアの募集リスト
| 図面 | 階数 | 面積 | 賃料(共益費込) (坪単価) |
保証金/敷金 | 礼金 | 入居可能日 | |
|---|---|---|---|---|---|---|---|
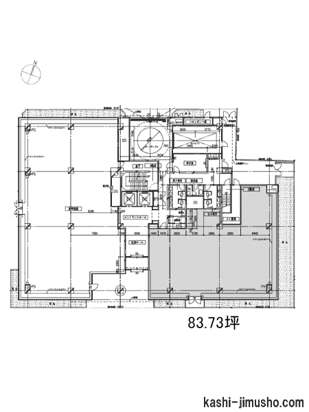
| 1階 |
N 83.73坪 (276.79m2) |
(未公開)
|
12ヶ月 | 無 | 2026/11 |
|
- ※取引態様:媒介
- ※フロア図面と現況が異なる場合は現況を優先いたします。
- ※貸室内部の写真・貸室からの景色に関しては、現在の募集フロアと異なる場合がございます。
- ※保証金/敷金以外の費用については別途消費税が必要になります。
- ※各物件により、別途費用が必要な場合には、物件紹介時又は重要事項説明においてご説明いたします。
- ※面積の箇所に表示している『N』はネット契約(契約面積はオフィス専用部分のみ)『G』はグロス契約(契約面積は共用部分を加えた面積)を表しています。
麹町ビルの近隣物件リスト
「麹町ビル」に関するお問合せ
![]() |
|
| このページのURL | https://tokyo.kashi-jimusho.com/detail/1091/291545/ |
|---|---|
株式会社サンエスコーポレーション |
|
| 〒103-0027 東京都中央区日本橋2-2-21 日本橋二丁目ビル5階 | |
















